622 W North Street | Mt. Sterling, IL
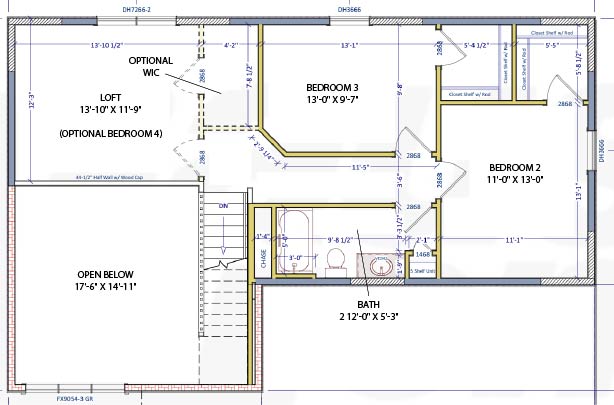
The buyers of 622 W North Street snagged a home with a standout feature that sets it apart from other Neylon Farms designs. Completed in January 2024, this 1,816-square foot home on an 88' x 136' lot offers 3 bedrooms and 2.5 bathrooms, plus something special that caught everyone's attention.
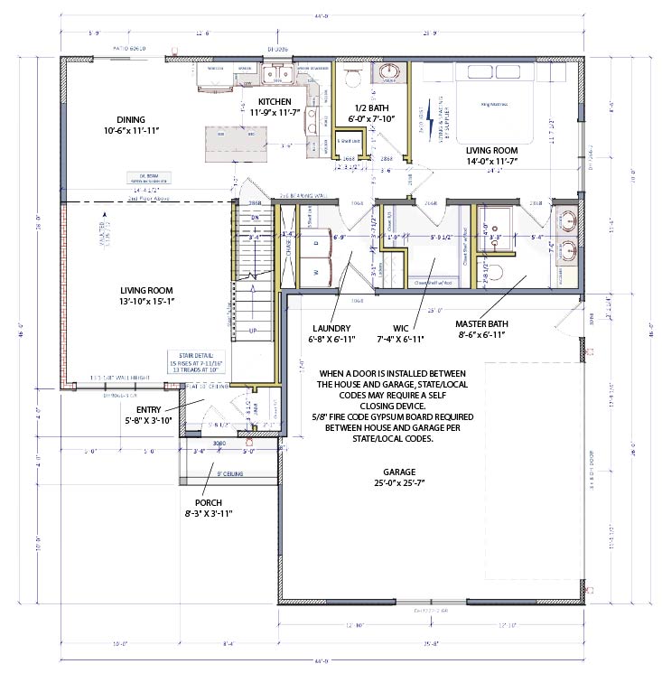
What's the draw here? Natural light floods through the home's well-placed windows, creating bright, welcoming spaces throughout. The real showstopper is the finished loft area above the garage with an open balcony overlooking the main living space below. This unique feature adds architectural interest and provides a versatile bonus room that works as a home office, reading nook, kids' play area, or extra lounge space. The main level flows smoothly with an open layout connecting the kitchen, dining, and living areas, while the bedrooms offer comfortable private retreats. The two-car garage handles parking and storage, and the generous lot gives the home room to breathe.
-
3 Bedroom
-
2.5 Bathrooms
-
2 Car Garage
-
1,816 Sq Ft
-
88' x 136' Lot
Here's what makes Neylon Farms special:
Our experienced builders work with proven floor plans like this one, but the blueprints are just the beginning. Want to modify the layout? Upgrade finishes? Add your own personal touches? We'll collaborate with you to customize a design that fits your lifestyle perfectly. Each home we build reflects the unique vision of the family who will live there.
Inspired by what you see here?
Let’s discuss available lots and how we can adapt designs like this one to create your ideal home in Mt. Sterling’s premier new community.
